PORTFOLIO


CKA Architects Experience

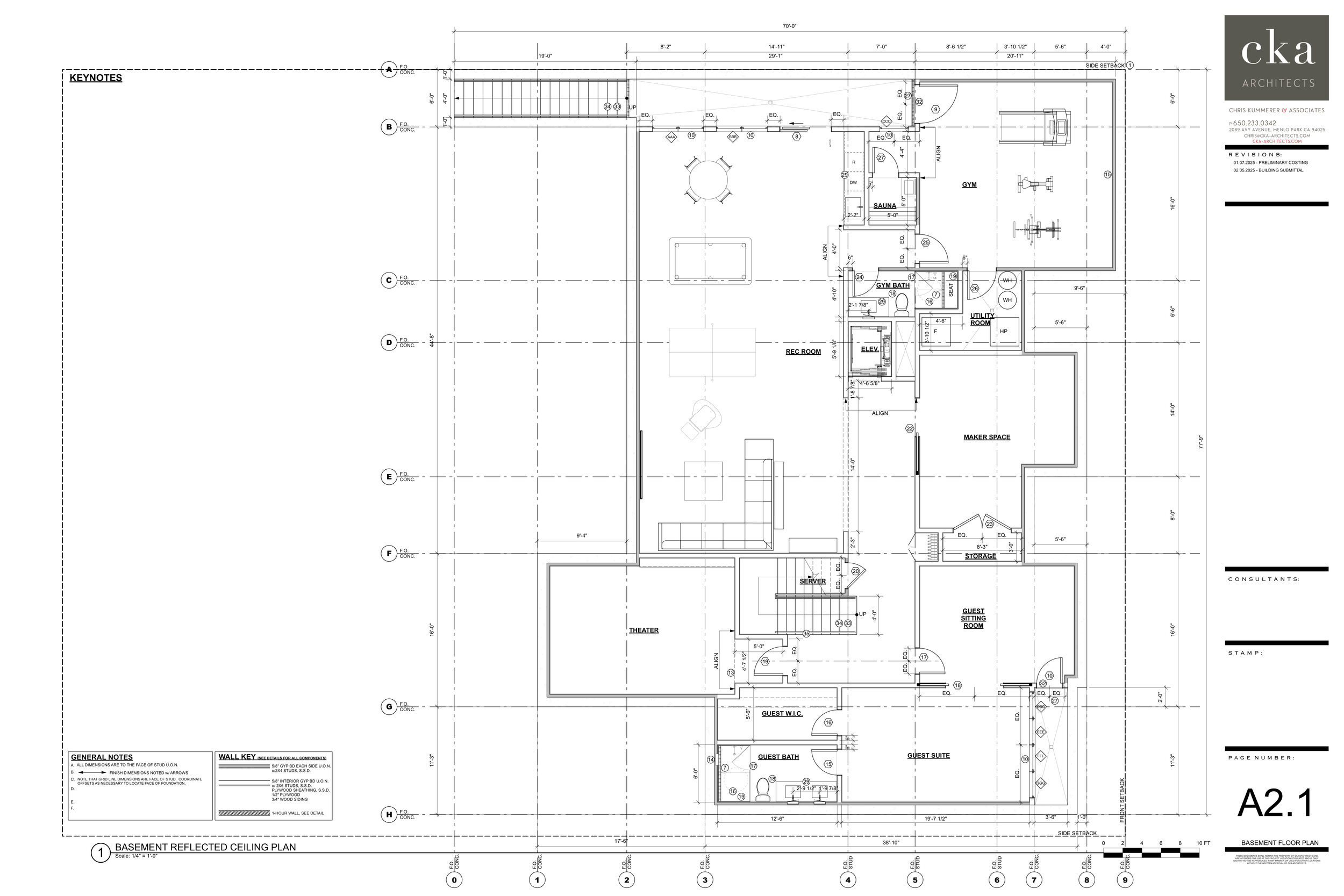
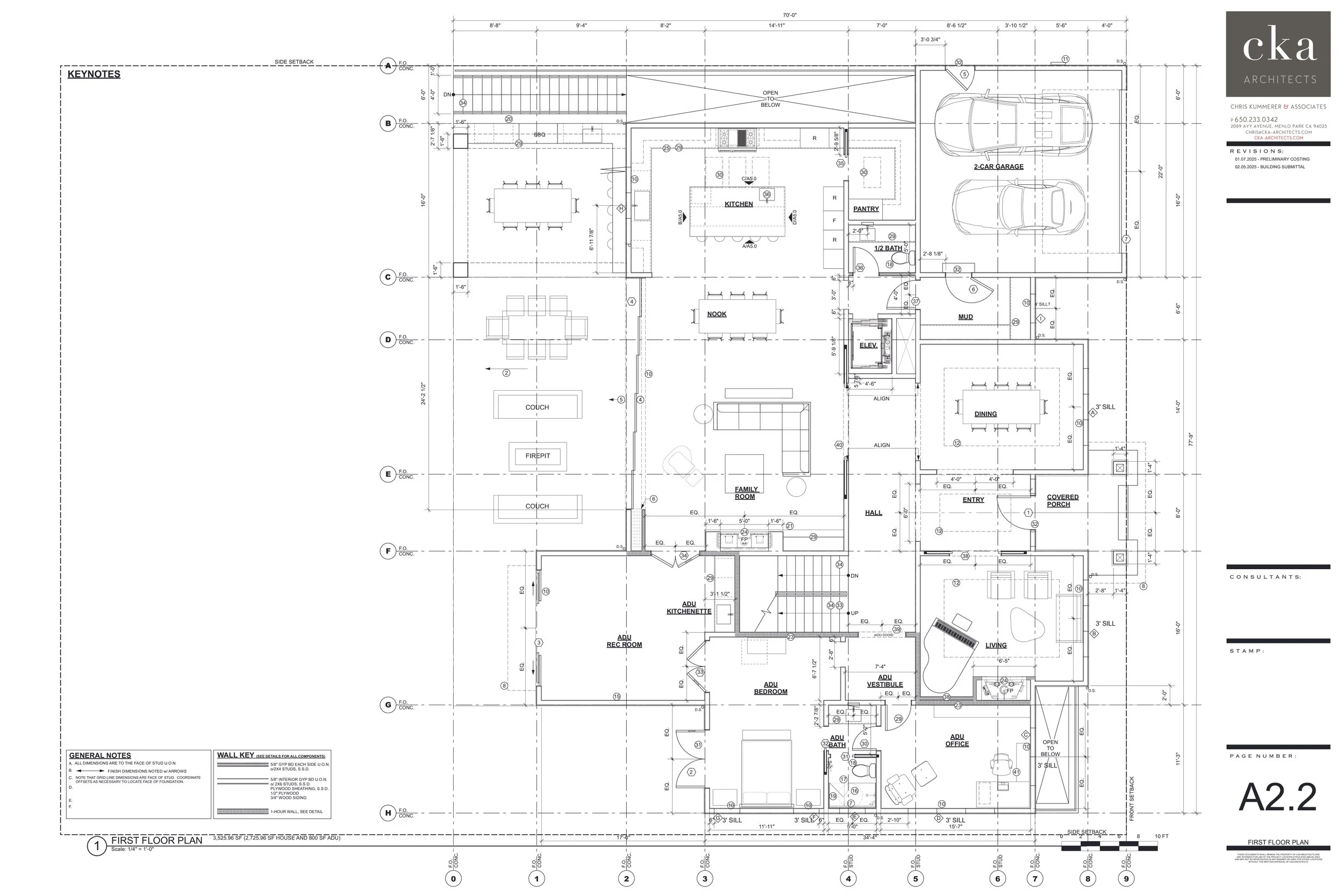
I have learned a lot during my time at CKA Architects. I acted as a Project Manager for a few projects, and jumped in to help draw/draft/3D model projects as needed. Since this was a smaller sized firm, everyone had to handle their own projects for the most part, so, for the most part, I was in charge of the projects that I was on. Two projects that I am proud of are two houses. They are similar in scope - two-story houses with basements and attached ADUs. While I did not design these projects, I drew up the entire CD set by myself, under the direction of the head architect, Chris. I am showing the plans for one house on this page currently, but I will be adding the other soon, with more examples of the different drawings I worked on (elevations, sections, detail sheets, etc.). I biggest take-away from my experience at CKA Architects is understanding the process of getting a project designed and built. Being able to see the permitting process first-hand while studying for the CSE was super beneficial to my learning and I feel a lot more confident now than I did before I worked here. I also received a lot of mentoring from Chris, Emilie, and Travis during my time at CKA, and that has been truly invaluable.